Locinox Hydraulic Gate Closer – Verticlose 2 (Retro-Fit, 90° / 180°)
Looking for a heavy-duty hydraulic gate closer in Australia? The Locinox Verticlose 2 is one of the most reliable and versatile closers on the market. Designed for industrial and commercial gates, it provides smooth, controlled closing without slamming — perfect for warehouses, factories, and high-traffic sites.
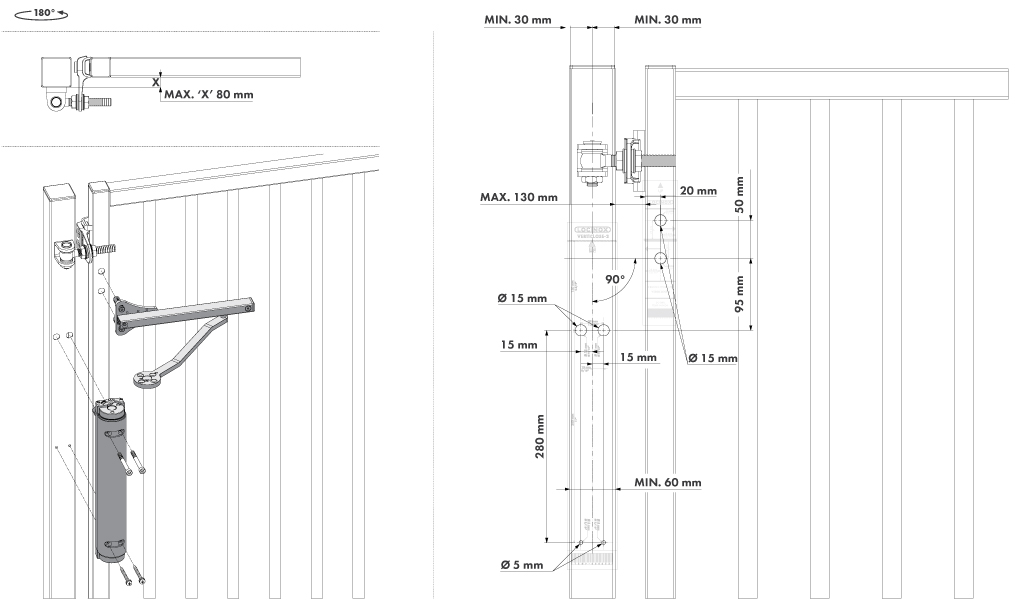
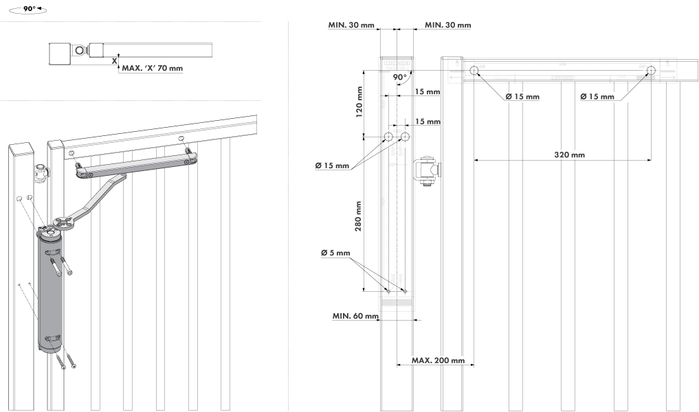
This retro-fit gate closer works with both 90° and 180° hinges, making it easy to install on existing gates. With its hydraulic system, scratch-resistant anodised aluminium housing, and patented Quick-Fix mounting system, the Verticlose 2 delivers long-lasting performance and an easy installation process.
Key Features
- Heavy-duty hydraulic gate closer for 90° and 180° hinges
- Ideal for industrial, commercial, and security gates
- Max gate size: 1.5 m wide, 150 kg weight
- Adjustable speed and final snap for controlled closing
- Consistent closing force across the full 180° swing
- Scratch-resistant, corrosion-free anodised aluminium housing
- Compact, professional design
- Easy to install with Quick-Fix retro-fit system
Gate Capacity & Warranty
- Maximum gate weight: 150 kg
- Maximum gate width: 1.5 m
- Use only within these specifications — larger or heavier gates are not recommended and are not covered under warranty.
Installation Manual
Videos
Alternative Products
These other products might interest you
